オフィスナビ撮影チームです!
本日は東京都中央区新川にある「SNT八丁堀ビル」のご紹介です!
アクセス:JR京葉線「八丁堀」駅 徒歩2分、東京メトロ日比谷線「八丁堀」駅徒歩4分、東西線「茅場町」駅徒歩7分、「東京」駅徒歩12分
4駅複数路線利用可能でアクセスが非常に良く、ビジネスの拠点として最適な立地に位置する2021年2月竣工の新築オフィスビルです!フロアごとにセキュリティシステムが完備されているので、安心してご利用いただけます。

◆ツアービューにてご覧ください!◆
SNT八丁堀ビル 外観~エントランス
☜☜ツアービューへのダイレクトアクセスできるQRコード
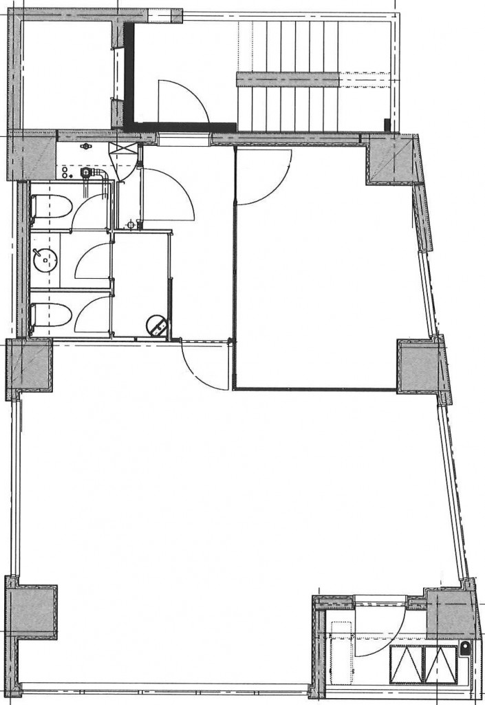
基準階(4階19.99坪)
☜☜ツアービューへのダイレクトアクセスできるQRコード
●貸室●
基準階<19.99坪>室内写真 ※写真は4階のものです


足元から天井までの大きな窓から十分に光を採りこむができます。

ミーティングルームやリフレッシュスペースとして活用することができるように貸室内が区切られています!ガラスパーテションを採用しているため、明るく広がりを感じられる空間です。

コンパクトながらWCは男女別の個室が設置されています。
SNT八丁堀ビル 東京都中央区新川2-8-8
⇩⇩⇩SNT八丁堀ビルのお問い合わせ・詳細はこちらから!より多くの写真がご覧いただけます!
■■■■■■■■■■■■■■■■■■■■■■■■■■■■■■■■■■■
◆VRサービスRerease!◆
ハイクオリティなフォトサービスと視覚型体感VR室内ツアーサービスを
ロープライスでご提供!宣伝・広告・集客に大きく貢献します。
不動産のみならず全ての業種の依頼をお受けします。
VRサービスに関する詳細・質問・ご相談は下記へお気軽にどうぞ!
オフィスナビ株式会社
東京本社撮影総合担当:平井
携帯:080-3003-8376
E-mail:r-hirai@office-navi.co.jp
オンラインで最高の内見体験を、オフィスVR撮影&VRレイアウトサービス
◆VR無料内覧サービス開始◆
※オフィスをご検討されているお客様のみの無料サービスプランになります
■■■■■■■■■■■■■■■■■■■■■■■■■■■■■■■■■■■