オフィスナビ撮影チームです!
本日は東京都中央区八丁堀にある「京橋宝町PREXビル」のご紹介です!
アクセス:「宝町」駅徒歩3分、「八丁堀」駅徒歩4分、「新富町」駅徒歩6分、「京橋」駅徒歩7分
京橋宝町PREXビルは2021年5月竣工の新築ビルで、平成通りに面しいて視認性が抜群です。
屋上には眺めの良い庭園、喫煙所、ワークスペースがあり、リフレッシュできます!

エントランス、EV2基

屋上庭園

◆ツアービューにてご覧ください!◆
京橋宝町PREXビル 外観~屋上庭園
☜☜ツアービューへのダイレクトアクセスできるQRコード
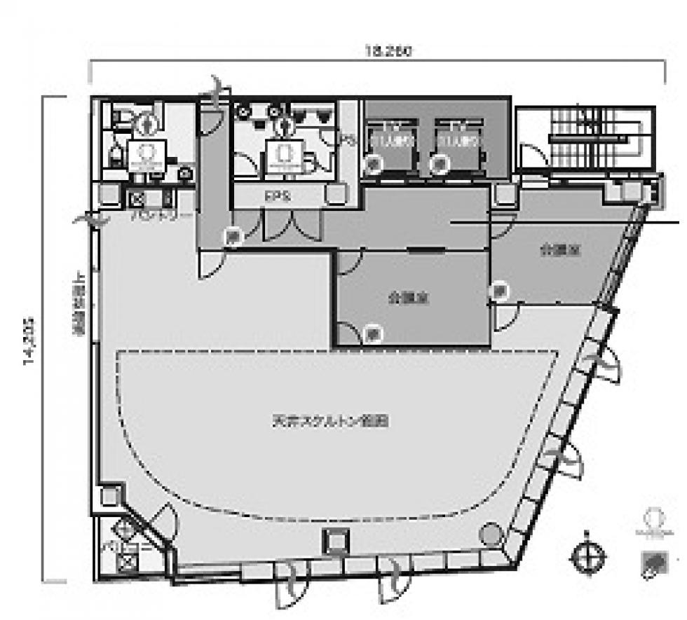
基準階(67.05坪)
☜☜ツアービューへのダイレクトアクセスできるQRコード
4階セットアップオフィス(67.05坪)
☜☜ツアービューへのダイレクトアクセスできるQRコード
●貸室●
<基準階&セットアップオフィス 67.05坪 >室内写真

貸室内は会議室が2部屋、天井はスケルトンになっており天井高が高いのが特徴です。

会議室

セットアップオフィス

WCは男女別で設置洗練された印象の内装です。

給湯室は貸室内に設置。

是非お問い合わせください!
京橋宝町PREXビル 東京都中央区八丁堀4-3-5
⇩⇩⇩京橋宝町PREXビルのお問い合わせ・詳細はこちらから!より多くの写真がご覧いただけます!
■■■■■■■■■■■■■■■■■■■■■■■■■■■■■■■■■■■
◆オフィスナビVRサービス◆
VR室内ツアーサービスをロープライスでご提供!宣伝・広告・集客に大きく貢献します
価格はよりリーズナブルに、付加サービスのプランが増えて更に充実。
是非一度 HPをご覧下さい!
※不動産のみならず全ての業種のご依頼をお受けします。
VRサービスに関する詳細・質問・ご相談は下記へお気軽にどうぞ!
オフィスナビ株式会社
東京本社撮影総合担当:平井
携帯:080-3003-8376
E-mail:r-hirai@office-navi.co.jp
オンラインで最高の内見体験を、オフィスVR撮影&VRレイアウトサービス
◆オフィスナビ◆
◆居抜きオフィスナビ◆
■■■■■■■■■■■■■■■■■■■■■■■■■■■■■■■■■■■