オフィスナビ撮影チームです!
本日は東京都港区三田にある「MAビル三田2丁目」のご紹介です!

アクセス:都営大江戸線「赤羽橋」駅 徒歩7分|都営浅草線・三田線「芝公園」駅 徒歩9分|JR「田町」駅 徒歩14分
三田通りから一本入った、閑静な住宅エリアに位置する7階建の低層オフィスビルです。基準階9.18坪と小規模なオフィスをお探しの方にオススメです!

EVは1基設置です。ファサードと同様、コンクリート打ちっ放しのシンプルなデザインのエントランスホールとなっています。
◆ツアービューにてご覧ください!◆
MAビル三田2丁目
☜☜ツアービューへのダイレクトアクセスできるQRコード
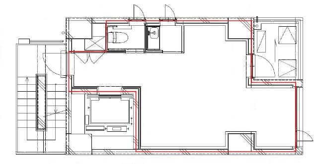
基準階(9.18坪)
☜☜ツアービューへのダイレクトアクセスできるQRコード
●貸室●
<基準階 9.18坪> ※撮影7F


貸室内はZ型のような特徴的な形状です。コンパクトながらバルコニーも設置されています。


給湯スペースにも、WCにも窓が設置されており、明るい印象です。
MAビル三田2丁目 東京都港区三田2-9-2
⇩⇩⇩MAビル三田2丁目のお問い合わせ・詳細はこちらから!より多くの写真がご覧いただけます!
■■■■■■■■■■■■■■■■■■■■■■■■■■■■■■■■■■■
◆オフィスナビVRサービス◆
VR室内ツアーサービスをロープライスでご提供!宣伝・広告・集客に大きく貢献します
価格はよりリーズナブルに、付加サービスのプランが増えて更に充実。
是非一度 HPをご覧下さい!
※不動産のみならず全ての業種のご依頼をお受けします。
VRサービスに関する詳細・質問・ご相談は下記へお気軽にどうぞ!
オフィスナビ株式会社
東京本社撮影総合担当:平井
携帯:080-3003-8376
E-mail:r-hirai@office-navi.co.jp
オンラインで最高の内見体験を、オフィスVR撮影&VRレイアウトサービス
◆オフィスナビ◆
◆居抜きオフィスナビ◆
■■■■■■■■■■■■■■■■■■■■■■■■■■■■■■■■■■■