オフィスナビ撮影チームです!
本日は東京都渋谷区渋谷にある「第3西青山ビル」のご紹介です!

アクセス:東京メトロ銀座線|東京メトロ半蔵門線|JR|東急東横線|東京メトロ副都心線|東急田園都市線|京王井の頭線「渋谷」駅 徒歩5分
1995年7月築、地下1階地上8階建のオフィスビルのご紹介です!
宮益坂上の交差点付近、美竹通りに面しており車通りの多いエリアですが、ファサードは落ち着いた雰囲気があります。

駐車場完備、ワンフロア1テナントのコンパクトな貸室が魅力です!
◆ツアービューにてご覧ください!◆
第3西青山ビル
☜☜ツアービューへのダイレクトアクセスできるQRコード
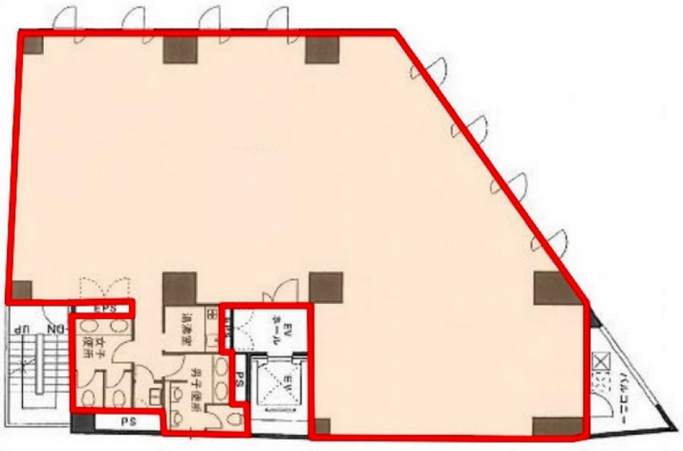
基準階(61.54坪)
☜☜ツアービューへのダイレクトアクセスできるQRコード
●貸室●
<5階61.54坪 >


台形のような少し変わった形状の貸室が特徴です。コンパクトなバルコニーもあります!




給湯スペース、男女別WCもフロア専有部内に設置されています。
第3西青山ビル 東京都渋谷区渋谷1-8-1
⇩⇩⇩第3西青山ビルのお問い合わせ・詳細はこちらから!より多くの写真がご覧いただけます!
■■■■■■■■■■■■■■■■■■■■■■■■■■■■■■■■■■■
◆オフィスナビVRサービス◆
VR室内ツアーサービスをロープライスでご提供!宣伝・広告・集客に大きく貢献します
価格はよりリーズナブルに、付加サービスのプランが増えて更に充実。
是非一度 HPをご覧下さい!
※不動産のみならず全ての業種のご依頼をお受けします。
VRサービスに関する詳細・質問・ご相談は下記へお気軽にどうぞ!
オフィスナビ株式会社
東京本社撮影総合担当:平井
携帯:080-3003-8376
E-mail:r-hirai@office-navi.co.jp
オンラインで最高の内見体験を、オフィスVR撮影&VRレイアウトサービス
◆オフィスナビ◆
◆居抜きオフィスナビ◆
■■■■■■■■■■■■■■■■■■■■■■■■■■■■■■■■■■■