オフィスナビ撮影チームです!

アクセス:東京メトロ有楽町線「新富町」駅 徒歩2分|東京メトロ日比谷線「築地」駅 徒歩3分|東京メトロ日比谷線・都営浅草線「東銀座」駅 徒歩5分
2駅2路線利用可能な場所に位置するオフィスビルです!1975年築、2013年には耐震補強工事を完了しているため、新耐震基準を満たしております。

EVは3基設置、機械式の駐車場完備と、ビル設備も充実しています。
◆ツアービューにてご覧ください!◆
恒産第3ビル
☜☜ツアービューへのダイレクトアクセスできるQRコード
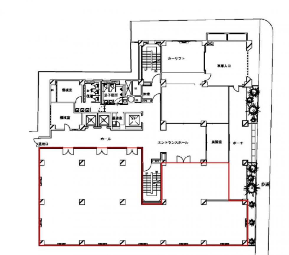
1階(119.77坪)
☜☜ツアービューへのダイレクトアクセスできるQRコード
4階(214.86坪)
☜☜ツアービューへのダイレクトアクセスできるQRコード
10階(54.72坪)
☜☜ツアービューへのダイレクトアクセスできるQRコード
●貸室●
<1階119.77坪 >


セントラル空調と個別空調の組み合わせになっており、調整がしやすいです。
<4階214.86坪 >


4Fは200坪超のワンフロアでご利用いただけます。コの字型に近い貸室は、会議室、執務室、社長室などセクションごとのレイアウトがしやすい形状です。
<10階54.72坪 >


10Fはおよそ55坪と比較的コンパクトな貸室です。このフロアはルーフバルコニーに囲われており、コンパクトながらも比較的解放感のある空間が特徴です。
<給湯室・WC >

給湯スペースは各フロアごとに、共有部に設置されています。


男女別WCは給湯スペース同様に、フロア共有部に設置されています。
恒産第3ビル 東京都中央区銀座2-16-7
⇩⇩⇩恒産第3ビルのお問い合わせ・詳細はこちらから!より多くの写真がご覧いただけます!
■■■■■■■■■■■■■■■■■■■■■■■■■■■■■■■■■■■
◆オフィスナビVRサービス◆
VR室内ツアーサービスをロープライスでご提供!宣伝・広告・集客に大きく貢献します
価格はよりリーズナブルに、付加サービスのプランが増えて更に充実。
是非一度 HPをご覧下さい!
※不動産のみならず全ての業種のご依頼をお受けします。
VRサービスに関する詳細・質問・ご相談は下記へお気軽にどうぞ!
オフィスナビ株式会社
東京本社撮影総合担当:平井
携帯:080-3003-8376
E-mail:r-hirai@office-navi.co.jp
オンラインで最高の内見体験を、オフィスVR撮影&VRレイアウトサービス
◆オフィスナビ◆
◆居抜きオフィスナビ◆
■■■■■■■■■■■■■■■■■■■■■■■■■■■■■■■■■■■