オフィスナビ撮影チームです!
本日は東京都新宿区四谷にある「ワールド四谷ビル」のご紹介です!
アクセス:東京メトロ丸ノ内線 「四谷三丁目」駅 徒歩3分、東京メトロ丸ノ内線 「新宿御苑前」駅 徒歩7分、都営新宿線 「曙橋」駅 徒歩10分
「四谷三丁目」駅から徒歩3分の新宿通りに面したビルです。
2016年にエントランス・EVホール等大規模リニューアルと耐震補強工事が実施済みです。

コンパクトながら、ソファーが置かれたゆとりあるエントランスホールとなっています。
◆ツアービューにてご覧ください!◆
ワールド四谷ビル 外観~エントランス
☜☜ツアービューへのダイレクトアクセスできるQRコード
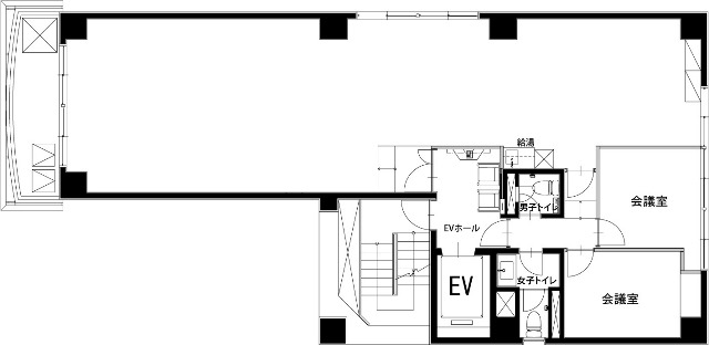
基準階(37.67坪)
☜☜ツアービューへのダイレクトアクセスできるQRコード
●貸室●
<基準階 37.67坪 >室内写真



細長い間取りで会議室が2室設置されているので、用途に合わせた使い分けのしやすいレイアウトも可能です。

WCは男女別に設置されており、落ち着いた色合いとなっています。
四谷エリアのコンパクトオフィスをお探しでしたらぜひご検討ください!
ワールド四谷ビル 東京都新宿区四谷4-3-1
⇩⇩⇩ワールド四谷ビルのお問い合わせ・詳細はこちらから!より多くの写真がご覧いただけます!
■■■■■■■■■■■■■■■■■■■■■■■■■■■■■■■■■■■
◆オフィスナビVRサービス◆
VR室内ツアーサービスをロープライスでご提供!宣伝・広告・集客に大きく貢献します
価格はよりリーズナブルに、付加サービスのプランが増えて更に充実。
是非一度 HPをご覧下さい!
※不動産のみならず全ての業種のご依頼をお受けします。
VRサービスに関する詳細・質問・ご相談は下記へお気軽にどうぞ!
オフィスナビ株式会社
東京本社撮影総合担当:平井
携帯:080-3003-8376
E-mail:r-hirai@office-navi.co.jp
オンラインで最高の内見体験を、オフィスVR撮影&VRレイアウトサービス
◆オフィスナビ◆
◆居抜きオフィスナビ◆
■■■■■■■■■■■■■■■■■■■■■■■■■■■■■■■■■■■