オフィスナビ撮影チームです!
本日は、千代田区四番町にある「四番町THビル」のご紹介です。
JR中央総武線・地下鉄各線「四ツ谷駅」徒歩9分の場所に位置する、
重厚感漂うオフィスビルです!


2020年1月に一部リニューアル工事を行ったばかりの綺麗なビルです。
エントランスに入ると、待合室として自由にお使いいただけるフリースペースが設けられています。
昼食時間になると、ビルの前には移動販売車が停車します。
◆ツアービューにてご覧ください!◆
四番町THビル トップページ
☜☜ツアービューへのダイレクトアクセスできるQRコード
四番町THビル<2階>トップページ
☜☜ツアービューへのダイレクトアクセスできるQRコード
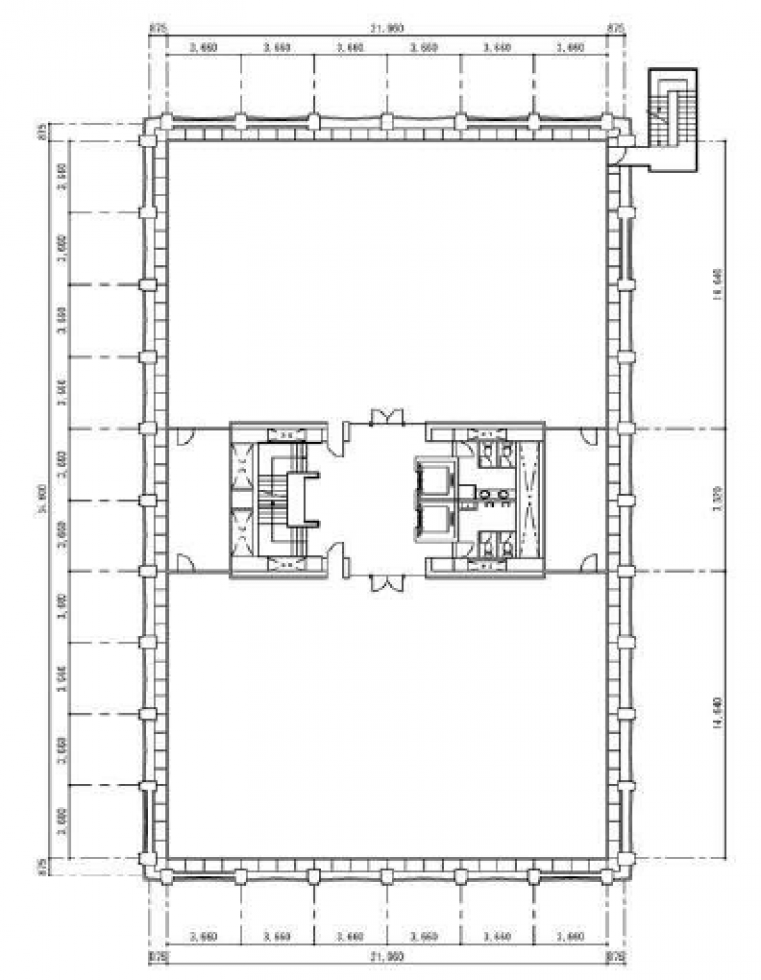
●貸室●
<2階> 224.35坪




貸室は、EVホールを中心に東西2つに分かれています。
窓に囲まれた室内はとても明るく、広々としていて圧迫感は一切感じさせません。
(個別空調・OAフロア)

貸室からは、隣接の駐車場とグラウンドが見えます。
高い建物が隣接していないため、2階とは思えない開放的な眺望です。


WCは男女別、各フロアEV横に設置されています。
白を基調とした清潔感のある設備です。
四番町THビル 東京都千代田区四番町2-12
■■■■■■■■■■■■■■■■■■■■■■■■■■■■■■■■■■■■■■■■■■■■■■■■■
◆VRサービスRerease!◆
ハイクオリティなフォトサービスと視覚型体感VR室内ツアーサービスを
ロープライスでご提供!宣伝・広告・集客に大きく貢献します。
不動産のみならず全ての業種の依頼をお受けします。
VRサービスに関する詳細・質問・ご相談は下記へお気軽にどうぞ!
オフィスナビ株式会社
東京本社撮影総合担当:平井
携帯:080-3003-8376
E-mail:r-hirai@office-navi.co.jp
オンラインで最高の内見体験を、オフィスVR撮影&VRレイアウトサービス
◆VR無料内覧サービス開始◆
※オフィスをご検討されているお客様のみの無料サービスプランになります
■■■■■■■■■■■■■■■■■■■■■■■■■■■■■■■■■■■■■■■■■■■■■■■■■■■