オフィスナビ撮影チームです!
本日は東京都渋谷区宇田川町にある「ファザーランド渋谷Ⅱ」のご紹介です!
各線「渋谷」駅 徒歩9分
アベマタワーズの近く、オーチャードロードに面した通りにある2020年8月に竣工したばかりのデザイン性の高い新築ビルです!


地下1階~2階は飲食相談可能の店舗利用可能区画、3階~6階は事務所利用区画となっております。
各階ワンフロアであることもおすすめポイントです。
◆ツアービューにてご覧ください!◆
ファザーランド渋谷Ⅱ 外観~エントランス
☜☜ツアービューへのダイレクトアクセスできるQRコード
地下1階(19.96坪)
☜☜ツアービューへのダイレクトアクセスできるQRコード
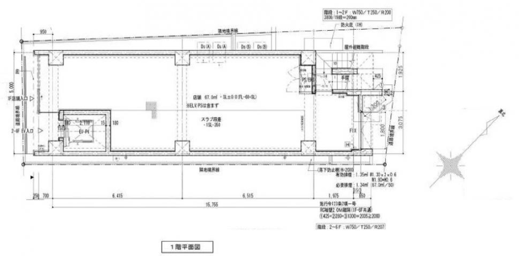
1階(20.28坪)
☜☜ツアービューへのダイレクトアクセスできるQRコード
2階(19.73坪)
☜☜ツアービューへのダイレクトアクセスできるQRコード
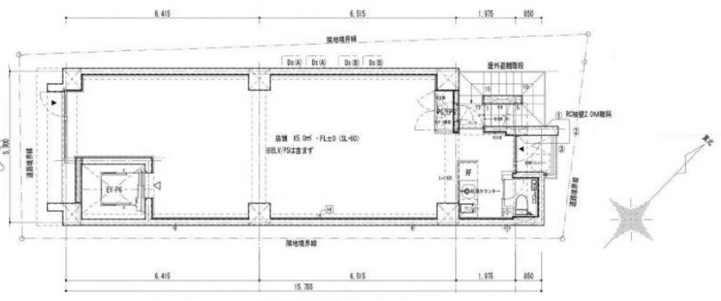
3~6階(19.73坪)
☜☜ツアービューへのダイレクトアクセスできるQRコード
●貸室●
<地下1階 19.96坪 >室内写真



地下1階は、飲食相談可能のスケルトン貸し区画となっております。
半地下になっており、アベマタワーズのある裏の通りから直接中に入ることができます。
<1階 20.28坪 >室内写真


1階は、飲食相談可能のスケルトン貸し区画となっております。
オーチャードロードからの視認性もよく、2面採光で光を取り入れやすくなっております。
<2階 19.73坪 >室内写真




2階も地下1階、1階と同様に飲食相談可能のスケルトン貸し区画となっております。
より光が入りやすく開放的な印象です。
<3階~6階 19.73坪 >室内写真




3階~6階は事務所使用区画となっております。
貸室からの眺望は圧迫感がなく、程よい空間が広がっています。
白とグレーを基調に、シックなデザイン性の高い内装です。
使いやすい形状のため、レイアウトもしやすくなっております。

WCは3階~6階の各フロアに1室、ホワイト&ブラウンの落ち着いた造りです。
ウォシュレットも完備しております。
給湯は一口IHコンロが付いているので使い勝手がよく、シンプルで清潔感があります。
ファザーランド渋谷Ⅱ 渋谷区宇田川町37-15
■■■■■■■■■■■■■■■■■■■■■■■■■■■■■■■■■■■
◆VRサービスRerease!◆
ハイクオリティなフォトサービスと視覚型体感VR室内ツアーサービスを
ロープライスでご提供!宣伝・広告・集客に大きく貢献します。
不動産のみならず全ての業種の依頼をお受けします。
VRサービスに関する詳細・質問・ご相談は下記へお気軽にどうぞ!
オフィスナビ株式会社
東京本社撮影総合担当:平井
携帯:080-3003-8376
E-mail:r-hirai@office-navi.co.jp
オンラインで最高の内見体験を、オフィスVR撮影&VRレイアウトサービス
◆VR無料内覧サービス開始◆
※オフィスをご検討されているお客様のみの無料サービスプランになります
■■■■■■■■■■■■■■■■■■■■■■■■■■■■■■■■■■■