オフィスナビ撮影チームです!
本日は東京都渋谷区渋谷にある新築のオフィスビル「サエグサビル 」のご紹介です。
再開発が進む渋谷駅新南口改札より徒歩2分の場所に位置します!
地下1F~2Fは店舗利用、3F~8Fは事務所利用となっています。
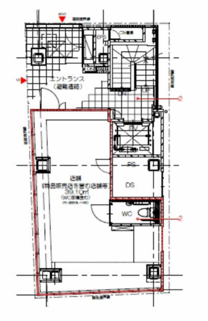
●地下1F~2F 店舗仕様●
1F


2F


地下1F重飲食可能、1F~2F物販・サービス
●3F~8F オフィス仕様●
窓面が広く、明るい印象の貸室です。
8F眺望 3F眺望

◆室内ツアービューにてご覧ください!◆
サエグサビル 渋谷区渋谷3-17-1
☜室内ツアービューへのダイレクトアクセスできるQRコード
■■■■■■■■■■■■■■■■■■■■■■■■■■■■■■■■■■■■■■■■■■■■■■■■■■■■■■■■■■
◆VRサービスRerease!◆

ハイクオリティなフォトサービスと視覚型体感VR室内ツアーサービスを
ロープライスでご提供します!
宣伝・広告・集客に大きく貢献します!
VRサービスに関する詳細・質問・ご相談は下記へお気軽にどうぞ!
オフィスナビ株式会社
東京本社撮影総合担当:平井
携帯:080-3003-8376
E-mail:r-hirai@office-navi.co.jp
◆VR無料内覧サービス開始◆
※オフィスをご検討されているお客様のみの無料サービスプランになります
■■■■■■■■■■■■■■■■■■■■■■■■■■■■■■■■■■■■■■■■■■■■■■■■■■■■■■■■■■■■