東京撮影チーム平井です。
本日は千代田区より「アセンド神田 」のご紹介です!
こちらは稀少な1Fフロアの募集です。
通りに面するビルは視認性が良く、1Fフロアも非常に視覚効果の高い立地です。
エントランス横には立体駐車場も完備!

◆ビル外観と大理石で造られた高級感あるエントランスホール@theta◆
アセンド神田ビル#ビル正面 - Spherical Image - RICOH THETA
アセンド神田ビル#正面玄関 - Spherical Image - RICOH THETA
1Fエントランスホールから貸室内への専用の出入り口がございます。
(トイレはエントランスホール横の1F入居者様専用トイレになります)

◆1F エントランス・エレベーターホール・WC@theta◆
アセンド神田ビル#1Fエントランス - Spherical Image - RICOH THETA
アセンド神田ビル#1Fエレベーターホール - Spherical Image - RICOH THETA
アセンド神田ビル#1F共用部WC(室外) - Spherical Image - RICOH THETA
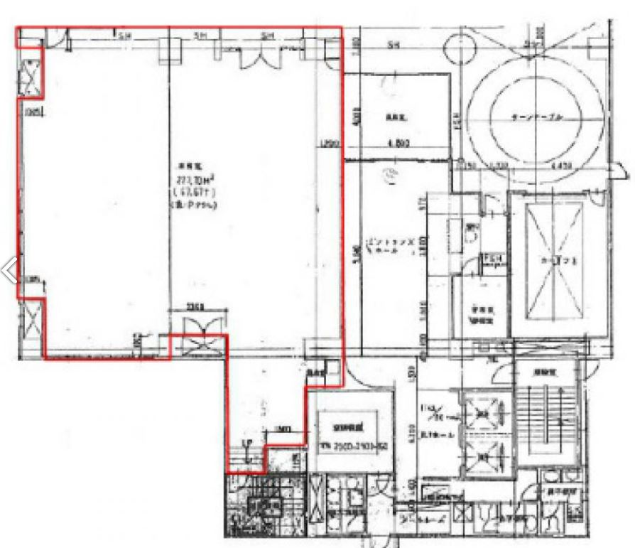
募集区画は稀少な1Fフロア 約69坪!


アセンド神田ビル 地上1階 68.75坪 のお問い合わせはこちらから!
1Fフロアは裏口を通じて出入りが可能な構造、ニーズに富んだオフィス空間が作れます
◆貸室内①◆
アセンド神田ビル#1F貸室① - Spherical Image - RICOH THETA
◆貸室内②◆
アセンド神田ビル#1F貸室② - Spherical Image - RICOH THETA
◆フロア共用部 給湯室◆
アセンド神田ビル#1F共用部給湯 - Spherical Image - RICOH THETA
アセンド神田ビル 千代田区神田富山町10-2

ビル背面にもこだわりが見える配慮の行き届いたオフィスビルです
是非、お問い合わせお待ちしております!!
東京オフィスナビ:0120981-440